Projekt domu „Chatka 2” to kompaktowe rozwiązanie dla osób, które marzą o przytulnym, funkcjonalnym i energooszczędnym domu. Idealny zarówno jako całoroczny dom mieszkalny, jak i klimatyczny domek wypoczynkowy, „Chatka 2” łączy w sobie prostotę i nowoczesność, zapewniając komfort na najwyższym poziomie. Dzięki przemyślanemu projektowi, dom ten doskonale sprawdzi się w różnych lokalizacjach, oferując spokój i wygodę niezależnie od otoczenia.

Charakterystyka projektu:

Chatka 2
Chatka 2
  • Powierzchnia użytkowa: „Chatka 2” została zaprojektowana z myślą o optymalnym wykorzystaniu przestrzeni. Zapewnia wygodne warunki dla pary, małej rodziny lub jako drugi dom do wypoczynku. Kompaktowy układ wnętrz pozwala na stworzenie przestrzeni idealnej zarówno do codziennego życia, jak i relaksu podczas urlopów.
  • Prosta, ale urokliwa forma: Zwarta bryła i dwuspadowy dach nadają projektowi tradycyjny charakter, który świetnie wpisuje się w otoczenie wiejskie, górskie czy podmiejskie. Dzięki uniwersalnej stylistyce „Chatka 2” harmonijnie komponuje się z otaczającą przyrodą, podkreślając jej naturalne piękno.
  • Funkcjonalny układ pomieszczeń:
    • Otwarty salon połączony z aneksem kuchennym zapewnia przestrzeń do wspólnego spędzania czasu i relaksu, a także umożliwia aranżację według indywidualnych potrzeb.
    • Dwie wygodne sypialnie oferują prywatność i miejsce do odpoczynku, doskonale spełniając wymagania zarówno dla domowników, jak i ewentualnych gości.
    • Praktyczna łazienka oraz dodatkowe pomieszczenie gospodarcze gwarantują wygodę użytkowania i miejsce do przechowywania niezbędnych rzeczy.
    • Opcjonalny taras pozwala cieszyć się otaczającą przyrodą i daje możliwość organizowania przyjemnych spotkań na świeżym powietrzu.

Parter:

1. Wiatrołap 3,40 m²

2. Kotłownia 4,47 m²

3. Pokój dzienny 28,14 m²

4. Kuchnia 6,58 m²

5. Łazienka 3,29 m²


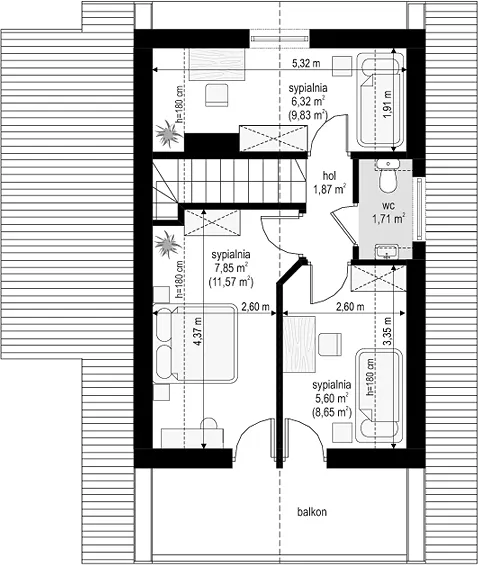
Poddasze użytkowe:

1. Pokój 6,32 m² (9,83 m²*)

2. Hall 1,87 m²

3. Łazienka 1,71 m²

4. Pokój 5,60 m² (8,65 m²*)

5. Pokój 7,85 m² (11,57 m²*)

*powierzchnia po podłodze

Główne zalety projektu:

  1. Kompaktowe wymiary: Dzięki niewielkim rozmiarom „Chatka 2” zmieści się nawet na małych działkach, zachowując pełną funkcjonalność wnętrz. To idealne rozwiązanie dla osób, które dysponują ograniczoną przestrzenią budowlaną.
  2. Energooszczędność: Projekt przewiduje zastosowanie nowoczesnych rozwiązań technologicznych, takich jak wysokiej jakości izolacje, energooszczędne systemy grzewcze oraz opcjonalne panele fotowoltaiczne, które znacznie obniżają koszty eksploatacji. Możliwość wdrożenia systemów rekuperacji dodatkowo zwiększa efektywność energetyczną domu.
  3. Elastyczność użytkowania: „Chatka 2” sprawdzi się zarówno jako dom na stałe, jak i miejsce na wakacyjne wypady, oferując komfort w każdej sytuacji. Dzięki modułowej konstrukcji istnieje również możliwość późniejszej rozbudowy domu.
  4. Naturalny charakter: Projekt uwzględnia zastosowanie ekologicznych materiałów budowlanych, takich jak drewno czy naturalne izolacje, co czyni go przyjaznym dla środowiska. Dodatkowe przeszklenia zwiększają dostęp światła dziennego, podkreślając ekologiczne podejście do projektowania.
  5. Optymalne wykorzystanie przestrzeni: Każdy metr kwadratowy w „Chatce 2” został przemyślany tak, aby zapewnić maksymalną funkcjonalność i wygodę. Przestrzeń ta jest idealna do kreatywnej aranżacji wnętrz, co pozwala na indywidualne dopasowanie wystroju do preferencji domowników.

Dla kogo jest „Chatka 2”?

„Chatka 2” to idealny wybór dla osób szukających niewielkiego, ale wygodnego domu, który harmonijnie wpisze się w naturalne otoczenie. Sprawdzi się zarówno dla par szukających swojego pierwszego domu, rodzin z dziećmi, jak i osób starszych, które pragną prostego i funkcjonalnego rozwiązania. To doskonałe rozwiązanie dla tych, którzy chcą cieszyć się spokojem i bliskością przyrody, bez rezygnacji z nowoczesnych udogodnień. „Chatka 2” to przestrzeń, która dostosuje się do Twojego stylu życia.

Zrealizuj swoje marzenia o własnym miejscu na ziemi z projektem domu „Chatka 2”! To inwestycja w komfort, harmonię i zrównoważony rozwój.

Należy pamiętać, że jest to przykładowy projekt, który możemy zmodyfikować na polecenie klienta.

Zdjęcia pochodzą ze strony: https://www.extradom.pl/projekt-domu-chatka-2-WAH1221

Projekt można kupić na stronie: https://www.extradom.pl/projekt-domu-chatka-2-WAH1221

Zobacz co jeszcze budujemy

O nas

Zajmujemy się budową domów z bala na działkach klientów oraz własnych. Oferujemy również możliwość kupna domów modułowych do montażu przez nas lub klienta. Budujemy także osiedla rekreacyjne lub turystyczne dla większych inwestorów.