Marzysz o niewielkim, przytulnym domu, który łączy funkcjonalność z naturalnym urokiem? Projekt domu „Przepiórka” to idealne rozwiązanie dla osób ceniących komfort, prostotę i bliskość natury. To kompaktowa przestrzeń, która zachwyca praktycznym układem i doskonałym dopasowaniem do różnorodnych potrzeb domowników.
Charakterystyka projektu:

- Powierzchnia użytkowa: Projekt „Przepiórka” oferuje optymalną powierzchnię, zapewniając komfort dla małej rodziny lub pary. Starannie przemyślane rozmieszczenie pomieszczeń pozwala w pełni wykorzystać każdy metr kwadratowy.
- Ekologiczne materiały: „Przepiórka” to projekt dostosowany do standardów budownictwa ekologicznego. Wykorzystanie naturalnych i energooszczędnych materiałów, takich jak drewno czy izolacje ekologiczne, nie tylko sprzyja zdrowemu stylowi życia, ale także zmniejsza koszty eksploatacyjne domu i jego wpływ na środowisko.


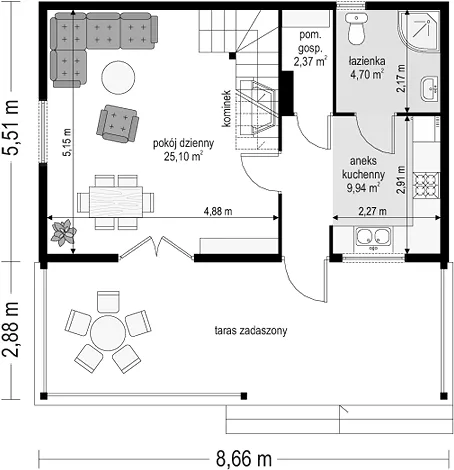
Parter:
- Pokój dzienny (25,10 m²):
- Centralna część domu z dużym oknem i wyjściem na zadaszony taras.
- Przestrzeń wypoczynkowa z kominkiem oraz miejscem na stół jadalniany.
- Aneks kuchenny (9,94 m²):
- Funkcjonalnie zaprojektowana kuchnia połączona z salonem.
- Wygodne rozmieszczenie sprzętów i przestrzeń robocza.
- Łazienka (4,70 m²):
- Komfortowa łazienka z prysznicem, umywalką i toaletą.
- Pomieszczenie gospodarcze (2,37 m²):
- Przestrzeń techniczna, idealna na systemy grzewcze, pralkę lub przechowywanie.
- Zadaszony taras:
- Doskonałe miejsce na odpoczynek lub posiłki na świeżym powietrzu.
Poddasze użytkowe:
Centralne przejście na poddaszu, łączące sypialnie.
Sypialnia 1 (11,52 m² – powierzchnia użytkowa, 18,24 m² – po podłodze):
Większy pokój, doskonały jako sypialnia główna lub dla gości.
Sypialnia 2 (10,18 m² – powierzchnia użytkowa, 16,65 m² – po podłodze):
Pokój z miejscem na łóżko i biurko, idealny jako pokój dziecięcy.
Komunikacja (1,62 m² – powierzchnia użytkowa, 3,00 m² – po podłodze)
Warianty projektu:
- Wariant A: Klasyczna wersja projektu z tradycyjnym układem pomieszczeń i podstawowym zestawem rozwiązań technologicznych. To idealna propozycja dla osób ceniących prostotę i umiarkowane koszty budowy. Wariant ten obejmuje standardowe wykończenie z możliwością późniejszych modyfikacji.
- Wariant B: Rozszerzona wersja projektu, która wyróżnia się dodatkowymi opcjami, takimi jak pompa ciepła, instalacja paneli fotowoltaicznych oraz zaawansowane systemy izolacji termicznej. Wariant obejmuje także możliwość stworzenia zielonego dachu, który zwiększa walory estetyczne oraz poprawia efektywność energetyczną budynku. Dzięki tym innowacjom wariant B zapewnia jeszcze większą niezależność energetyczną i korzyści w codziennej eksploatacji.
Dlaczego warto wybrać projekt „Przepiórka”?
- Uniwersalność: Kompaktowe rozmiary sprawiają, że dom sprawdzi się na różnych typach działek – od małych, miejskich parceli po te o nieregularnym kształcie. Prosty, ale elegancki wygląd budynku wkomponuje się w każde otoczenie.
- Niskie koszty budowy: Przemyślany projekt pozwala na zredukowanie kosztów budowy przy jednoczesnym zachowaniu wysokiej jakości wykonania. Minimalistyczna konstrukcja oznacza mniej skomplikowane prace budowlane, co przyspiesza realizację inwestycji.
- Bliskość natury: Duże przeszklenia zapewniają nie tylko dostęp do światła dziennego, ale także możliwość podziwiania krajobrazu. Ponadto projekt umożliwia wygodne zagospodarowanie tarasu lub ogrodu, tworząc przestrzeń do relaksu i integracji z naturą.
- Przyjazny środowisku: Budowa i eksploatacja domu w oparciu o nowoczesne technologie ekologiczne, takie jak systemy rekuperacji czy panele słoneczne, pozwala na zmniejszenie emisji CO2 i oszczędności w dłuższej perspektywie.
Projekt „Przepiórka” to propozycja dla tych, którzy pragną stworzyć ciepły dom o ponadczasowym charakterze. Minimalistyczna forma, funkcjonalny układ oraz przyjazne środowisku rozwiązania sprawiają, że to idealny wybór na początek nowej drogi życia. Wybierając między wariantami A i B, masz pewność, że dostosujesz projekt do swoich potrzeb i możliwości.
Zainspiruj się i zrealizuj swoje marzenia z projektem domu „Przepiórka”!
Należy pamiętać, że jest to przykładowy projekt, który możemy zmodyfikować na polecenie klienta.
Zdjęcia pochodzą ze strony: https://www.extradom.pl/projekt-domu-przepiorka-WAH1045
Projekt domu można zakupić na stronie: https://www.extradom.pl/projekt-domu-przepiorka-WAH1045
Zobacz co jeszcze budujemy





O nas
Zajmujemy się budową domów z bala na działkach klientów oraz własnych. Oferujemy również możliwość kupna domów modułowych do montażu przez nas lub klienta. Budujemy także osiedla rekreacyjne lub turystyczne dla większych inwestorów.

Musisz być zalogowany, aby dodać komentarz.